Cargando...

Las Condes, Apoquindo con Cruz del Sur

Detalles

Valor:
UF 216,79
Valor (CLP aprox.)*:
$ 8.796.657
Conversión: 1 UF = $ 40.577
Habitaciones:
8
Baño:
6
Amoblado:
Superficie Total:
570,5 m²
Superficie Útil:
570,5 m²

Dirección:
Las Condes, Apoquindo con Cruz del Sur
Código aviso:
106352818
Código externo aviso:
203059708
Tipo de publicación:
Arriendo Mensual
Tipo de propiedad:
Oficina
Fecha Publicación:
07/01/2026
* Valor calculado a partir del valor original, este valor es solo referencial.
Más Oficinas en Las Condes

Descripción

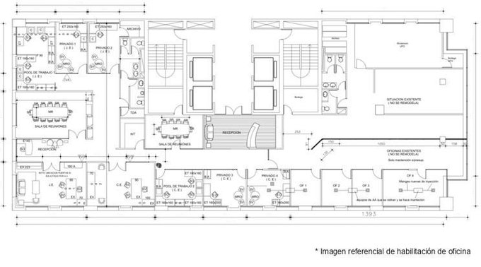
Edificio Apoquindo 4499

El edificio con una ubicación privilegiada a pasos del metro Escuela Militar Línea 1 y gran variedad de servicios a su alrededor.

Descripción del Edificio:
Pisos :16
Accesos controlados 24 hrs.
Detectores y alarmas de incendio
CCTV
Aascensores: 4

Canon de arriendo oficina:
1er Año UF 0,38/m
2do Año UF 0,40/m
3er Año UF 0,42/m
4to Año UF 0,44/m
5to Año UF 0,46/m
*Sujeto a contrato de mínimo 5 años

Superficie 570,5 m2
Estacionamiento UF 3,0 / Unidad
Habilitada con mobiliario

Mapa - Las Condes, Apoquindo con Cruz del Sur

Comodidades y Lugares de Interés

Las distancias son aproximadas y consideran una linea recta entre la propiedad y el punto de interés (No consideran las cuadras).

Escuela Militar
Av. Apoquindo con Av. Américo Vespucio
31 metros

Alcántara
Av. Apoquindo con Av. Alcántara
688 metros

Supermercado Ekono - Subcentro Escuela Militar
Av. Apoquindo N° 4400
57 metros

Contactar

Email inválido
Teléfono inválido
Consejos de seguridad - No sea estafado

Corredora

Logo corredora
Nombre ProUrbe Manquehue
Dirección Avda Manquehue Sur 1263

Información de Contacto

Nombre Octavio Muñoz
Teléfono T. Fijo VER TÉLEFONO