Detalles



















Se vende parcela con casa en Condominio Club de Golf Las Palmas del Oliveto – Etapa III
Ubicación y entorno
Esta propiedad se encuentra dentro de uno de los condominios más exclusivos y consolidados de la zona, destacando por sus calles pavimentadas, su laguna central y su excelente conectividad hacia la Ruta 78 y Camino a Melipilla. El acceso es rápido, seguro y muy conveniente para quienes buscan calidad de vida y cercanía a la ciudad.
Condominio y equipamiento
Al ingresar, los residentes son recibidos por la Casa Tudor, un completo centro deportivo y social que reúne canchas de pádel y tenis, gimnasio, clínica kinesiológica, peluquería, cafetería, restaurante y pub. Todo está pensado para ofrecer un estilo de vida cómodo, práctico y familiar, sin necesidad de salir del condominio.
Características de la propiedad
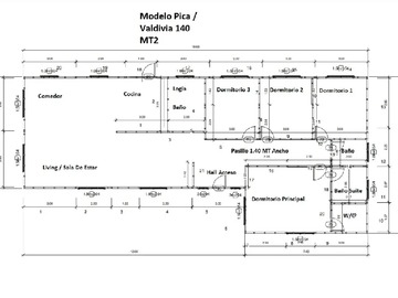
La parcela cuenta con 115 metros de largo por 46 metros de ancho, dentro de la cual se está construyendo una moderna casa estilo mediterráneo de 140 m², cuya entrega está prevista para diciembre de 2025. La vivienda incorpora cuatro dormitorios y tres baños, una cocina amoblada y equipada (horno eléctrico, encimera, campana y microondas), un dormitorio principal con walk-in closet, dormitorios secundarios con closet y loggia independiente. Las ventanas termopanel en PVC blanco aseguran eficiencia térmica y mayor confort. Además, el terreno incluye dobles empalmes de agua potable, riego y electricidad, lo que brinda la opción de construir una segunda vivienda si se desea.
Seguridad y estilo de vida
El condominio destaca por su alto nivel de seguridad, con acceso controlado y rondines permanentes que entregan tranquilidad total. Los residentes también pueden acceder a las canchas privadas de golf mediante membresía, disfrutando de un entorno natural de gran nivel que combina deporte, naturaleza y calidad de vida.
Costos y valor agregado
Los gastos comunes son de $230.000. Solo una parcela sin casa en este condominio supera los $200.000.000, por lo que esta oferta —que incluye terreno más vivienda en construcción— representa una excelente oportunidad de inversión.
Las fotografías mostradas fueron generadas con inteligencia artificial; solo se modificó la decoración interior y el paisajismo exterior.
| Nombre | Punto Propiedades |
|---|---|
| VER CORREO | |
| Teléfonos | VER TÉFONOS |
| Nombre | JUAN MUÑOZ |
|---|---|
| Teléfono T. Fijo | VER TÉLEFONO |