Cargando...

Santiago, Propiedad industrial antigua, ideal para inversión en zona en renovación y desarrollo.

Detalles

Valor:
UF 7.890,00
Valor (CLP aprox.)*:
$ 313.726.283
Conversión: 1 UF = $ 39.763
Superficie Total:
346 m²

Dirección:
Santiago, Propiedad industrial antigua, ideal para inversión en zona en renovación y desarrollo.
Código aviso:
100532973
Código externo aviso:
108073176
Tipo de publicación:
Venta
Tipo de propiedad:
Terreno Industrial
Fecha Publicación:
14/11/2025
* Valor calculado a partir del valor original, este valor es solo referencial.
Más Terreno Industrials en Santiago

Descripción

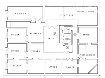
Propiedad con Clasificación Industrial en García Reyes Oportunidad en Barrio en Recuperación. Código VD - 73176.

Se vende propiedad ubicada en Calle García Reyes, Santiago, en una zona con clara renovación urbana y gran proyección.

Características de la propiedad:

- Superficie de terreno: 346,40 m aprox.

- 19 mts de frente y 18,2 de profundidad.

- Edificación principal: 318 m aprox.

- Clasificación de uso: industrial.

- Construcción de fachada continua.

Entorno y plusvalía:

- Barrio en proceso de recuperación, con nuevo edificio de 138 departamentos en la misma cuadra.

- Frente a Cesfam y base SAMU, garantizando acceso inmediato a servicios de salud.

- Presencia de hotel en la zona, aportando dinamismo y actividad comercial.

Ubicación estratégica con acceso a Ruta 5 y cercanía al centro de Santiago.

Mapa - Santiago, Propiedad industrial antigua, ideal para inversión en zona en renovación y desarrollo.

Comodidades y Lugares de Interés

Las distancias son aproximadas y consideran una linea recta entre la propiedad y el punto de interés (No consideran las cuadras).

Cumming
Catedral con Av. Ricardo Cumming
352 metros

Supermercado Líder Express - San Pablo
San Pablo N° 2362
210 metros

Supermercado Ekono - Av. San Pablo / Esperanza
Av. San Pablo N° 2902
521 metros

Contactar

Email inválido
Teléfono inválido
Consejos de seguridad - No sea estafado

Corredora

Logo corredora
Nombre Grupo Premium Propiedades Santiago
Dirección Av. Luis Thayer Ojeda 1039

Información de Contacto

Nombre Grupo Premium Propiedades Santiago
Teléfono T. Fijo VER TÉLEFONO
Teléfono T. Fijo VER TÉLEFONO