Cargando...

Santiago, Zenteno Pedro Lagos

Detalles

Valor:
UF 1.310,00
Valor (CLP aprox.)*:
$ 51.786.186
Conversión: 1 UF = $ 39.531
Gastos Comunes:
$ 70.000
Habitaciones:
2
Baño:
1
Amoblado:
No
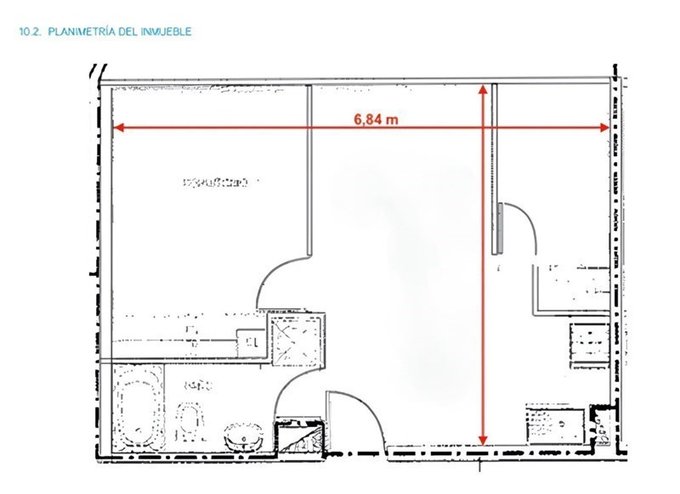
Superficie Total:
39 m²
Superficie Útil:
39 m²

Dirección:
Santiago, Zenteno Pedro Lagos
Código aviso:
96957696
Código externo aviso:
102133138
Tipo de publicación:
Venta
Tipo de propiedad:
Departamento
Fecha Publicación:
14/10/2025
* Valor calculado a partir del valor original, este valor es solo referencial.
Más Departamentos en Santiago

Descripción

Recién remodelado depto de 38,5 m2 con 2 dormitorios y 1 baño. Bodega

- Recién pintado, piso flotante nuevo sin uso, termo eléctrico nuevo, cambio de artefactos de monomando en tina y lavamanos.

- Dos dormitorios con closet.

- Living comedor con cocina integrada.

- Artefactos de encimera de 4 platos eléctrica y campana.

- Conección a lavadora y desague en baño.

- Sistema de seguridad 24/7 en edificio.

- Administración del edificio muy responsable y coordinada para el cumplimiento de reglamento de Copropiedad para óptimas normas de convivencia.

- Gran variedad de estacionamientos de visita.

- Quincho para asado en sotea

- Se admiten mascotas.

- Referencias de distancia: A 14 minutos a pié hasta Metro Rondizzoni; y 8 minutos a pié Gimnasio Smart Fit - Núcleo San Diego - Ñuble. 5 minutos en bicicleta al Parque O"higgins.

- Disponibles en pisos 2, 13 o 24.

- Opción con costo adicional de hasta 2 estacionamientos y bodega, no incluidos en el valor publicado.

Nota: En caso de arriendo se pide renta mínima de 2,5 veces el canon de arriendo, tanto del arrendador como del codeudor solidario; garantía 1,5 meses de arriendo.

VALE LA PENA VISITAR!
Ver video en publicación o solicitar por WhasApps

Mapa - Santiago, Zenteno Pedro Lagos

Comodidades y Lugares de Interés

Las distancias son aproximadas y consideran una linea recta entre la propiedad y el punto de interés (No consideran las cuadras).

Supermercado Ekono - San Diego / Arauco
San Diego N° 2027
280 metros

Johnson - Barrio Franklin
Ñuble Nº 1034
358 metros

Contactar

Email inválido
Teléfono inválido
Consejos de seguridad - No sea estafado

Corredora

Logo corredora
Nombre Nexxos
Dirección Los Abedules 3085, Piso 2, Vitacura, Santiago/Chile

Información de Contacto

Nombre Pablo Ortuzar
Teléfono T. Fijo VER TÉLEFONO