Detalles





Se vende casa en pasaje cerrado del sector Huamachuco 2, comuna de Renca. Barrio consolidado y tranquilo, ideal para familias.
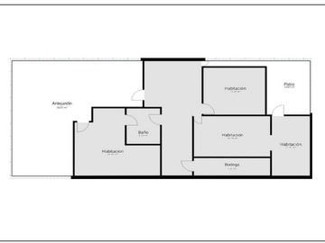
La propiedad cuenta con 160 m² de terreno y aproximadamente 75 m² construidos, con construcción mixta (parte sólida del año 90 y parte de material ligero).
Cuenta con: 3 dormitorios, 1 baño, Living comedor, Cocina, Patio
La casa se vende en estado actual, ideal para quien desee remodelar o ampliar según su proyecto.
Pasaje cerrado, buen entorno vecinal y excelente oportunidad dentro del sector. Cerca de Colegios, CESFAM, parques, etc.
| Nombre | Felipe Fuentes |
|---|---|
| Teléfono T. Fijo | VER TÉLEFONO |