Cargando...

Quilicura, Lo Etchevers / Quilicura

Detalles

Valor:
UF 1,70
Valor (CLP aprox.)*:
$ 67.731
Conversión: 1 UF = $ 39.842
Superficie Total:
621.177 m²

Dirección:
Quilicura, Lo Etchevers / Quilicura
Código aviso:
93525979
Código externo aviso:
108097327
Tipo de publicación:
Venta
Tipo de propiedad:
Terreno Industrial
Fecha Publicación:
08/09/2025
* Valor calculado a partir del valor original, este valor es solo referencial.
Más Terreno Industrials en Quilicura

Descripción

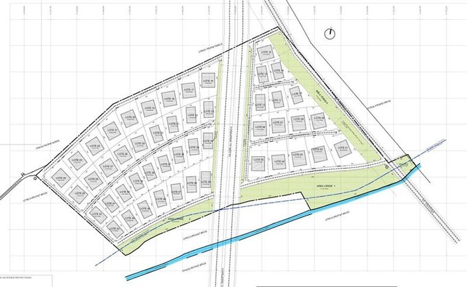
****Se presenta una oportunidad única de inversión en un extenso paño de 62 hectáreas de terreno plano, ideal para el desarrollo de bodegas logísticas, centros de distribución o industrias de bajo impacto ambiental. Esta propiedad se distingue por su inmejorable ubicación estratégica, a solo minutos del Aeropuerto Internacional de Santiago, lo que garantiza una conectividad excepcional tanto a nivel nacional como internacional.

Uno de los principales atributos de este terreno es que se encuentra interceptado por la futura carretera E22N Avenida Aeropuerto, una vía de 100 metros de ancho, diseñada para mejorar significativamente la accesibilidad y el flujo vehicular en la zona. Esta infraestructura potenciará aún más el valor de la propiedad y facilitará el transporte eficiente de mercancías y productos
.
Gracias a su topografía completamente plana, este terreno permite un desarrollo expedito y costo-efectivo, reduciendo considerablemente los gastos en movimientos de tierra y nivelación. Además, su amplio tamaño ofrece la posibilidad de diseñar proyectos modulares o escalables, adaptándose a distintas necesidades industriales o logísticas.

Su cercanía con importantes rutas y autopistas lo convierte en una opción ideal para empresas que buscan establecer operaciones en un punto neurálgico del comercio y distribución en Chile. La demanda por espacios industriales en esta área ha ido en aumento, impulsada por el crecimiento del comercio electrónico, la logística y la distribución de última milla.

En resumen, este terreno industrial de 62 hectáreas representa una excelente oportunidad de inversión para aquellos que buscan una ubicación privilegiada, conectividad sobresaliente y un entorno propicio para el desarrollo de proyectos de gran escala.

El valor de venta es de UF 1.056.000.-
El valor de venta es de UF 1,7 por mt2.

Superficie total 621.177 m2,
Superficie útil 378.502 m2

Contamos con calicata, proyecto aprobado, planos, autorización GORE

Mapa - Quilicura, Lo Etchevers / Quilicura

Contactar

Email inválido
Teléfono inválido
Consejos de seguridad - No sea estafado

Corredora

Logo corredora
Nombre Easyprop
Dirección Las condes

Información de Contacto

Nombre Elisa Packard
Teléfono T. Fijo VER TÉLEFONO