Cargando...

Providencia, 4 hab. en Lyon (158827)

Detalles

Valor:
UF 5.990,00
Valor (CLP aprox.)*:
$ 239.444.799
Conversión: 1 UF = $ 39.974
Gastos Comunes:
$ 210.000
Habitaciones:
3
Baño:
2
Amoblado:
Superficie Total:
82 m²
Superficie Útil:
82 m²

Dirección:
Providencia, 4 hab. en Lyon (158827)
Código aviso:
115984119
Código externo aviso:
158827
Tipo de publicación:
Venta
Tipo de propiedad:
Departamento
Fecha Publicación:
18/04/2026
* Valor calculado a partir del valor original, este valor es solo referencial.
Más Departamentos en Providencia

Descripción

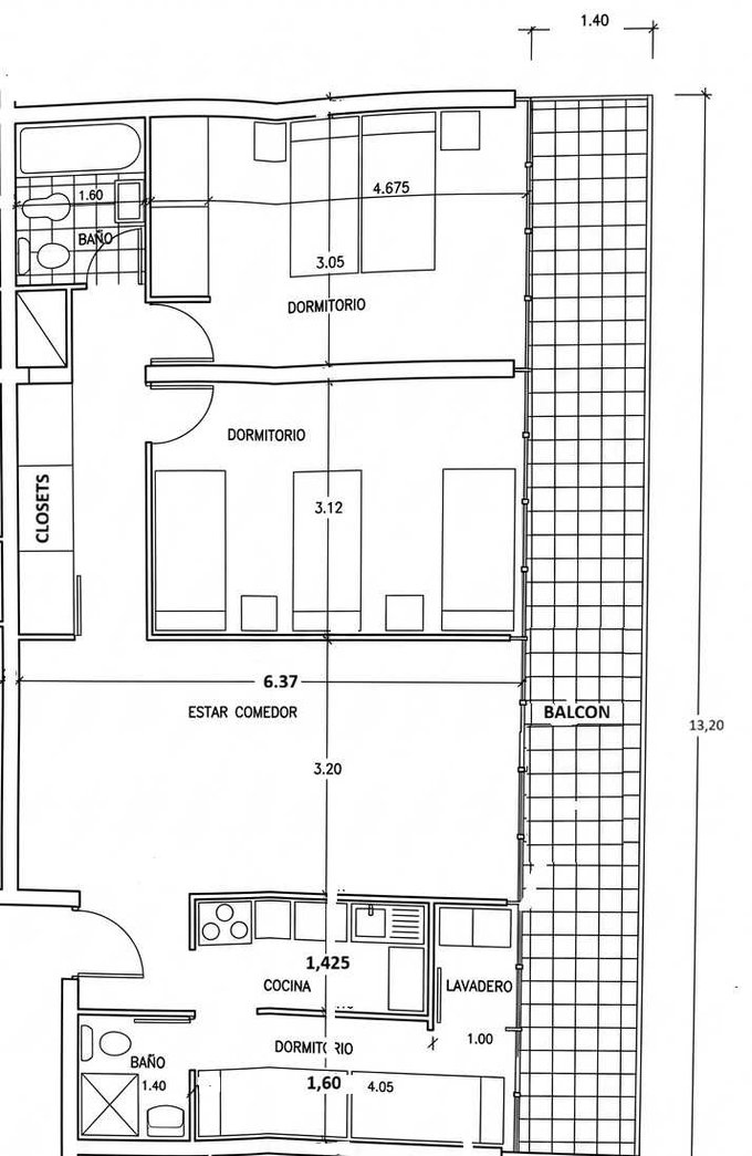
INVERSIÓN ACTIVA EN PROVIDENCIA | ALTA RENTABILIDAD APROX. | 4D FLEXIBLE

Oportunidad real de inversión en Ricardo Lyon 660, Providencia. Departamento actualmente operando en arriendo por habitaciones, generando buena rentabilidad, con demanda activa en una de las ubicaciones más consolidadas y buscadas de Santiago.

Cuenta con 100 m totales (incluye 18 m de terraza continua de muro a muro), ubicado en piso 6 con orientación sur.

Originalmente 3 dormitorios, hoy adaptado a 4 habitaciones para maximizar ingresos. Importante: la división del cuarto dormitorio (ex living) es completamente reversible, permitiendo volver a un formato tradicional sin intervenir el piso de parquet original.

- 4 dormitorios de buen tamaño, todos con conexión a terraza
-2 baños remodelados (uno completo + visita con ducha)
-Cocina remodelada e integrada con logia
-Conexión a lavadora
-Ventanas termopanel en todo el departamento
-Piso de parquet original en excelente estado
-Hall de acceso + múltiples espacios de guardado

La configuración actual responde a una estrategia clara de maximización de renta, pero mantiene flexibilidad total para usuario final o reconversión.

Ubicación estratégica: a pasos de comercio, servicios, conectividad y eje Ricardo Lyon.

*Sin estacionamiento ni bodega.

Propiedades con este nivel de rentabilidad, metraje y ubicación en Providencia no permanecen mucho tiempo en el mercado.

Mapa - Providencia, 4 hab. en Lyon (158827)

Comodidades y Lugares de Interés

Las distancias son aproximadas y consideran una linea recta entre la propiedad y el punto de interés (No consideran las cuadras).

Los Leones
Av. Nueva Providencia con Av. Suecia
340 metros

Mall Vivo Panorámico
Nueva Providencia 2155
502 metros

Supermercado Líder Express - Plaza Lyon
Av. Nueva Providencia Nº 2249
310 metros

París - Plaza Lyon
Av. Nueva Providencia Nº 2221
339 metros

Contactar

Email inválido
Teléfono inválido
Consejos de seguridad - No sea estafado

Información de Contacto

Nombre Kathy Arroyo
Teléfono T. Fijo VER TÉLEFONO