Cargando...

Peñaflor, Av.Balmaceda frente al lider de peñaflor a metros autopista del sol y acceso nueva estacion metro tren melipilla santiago

Detalles

Valor:
UF 11.150,00
Valor (CLP aprox.)*:
$ 444.235.178
Conversión: 1 UF = $ 39.842
Habitaciones:
7
Baño:
2
Amoblado:
No
Superficie Total:
497 m²
Superficie Construida:
298 m²

Dirección:
Peñaflor, Av.Balmaceda frente al lider de peñaflor a metros autopista del sol y acceso nueva estacion metro tren melipilla santiago
Código aviso:
114500350
Código externo aviso:
105107720
Tipo de publicación:
Venta
Tipo de propiedad:
Local Comercial
Fecha Publicación:
04/04/2026
* Valor calculado a partir del valor original, este valor es solo referencial.
Más Local Comercials en Peñaflor

Descripción

#vende mariana caceres , exclusiva casa aislada de gran proyeccion, en av principal de peñaflor, av balmaceda, cercana a la autopista del sol que facilita el desplazamiento a distintos puntos de la ciudad, cercana a la proxima estacion del metro, que conectara con la estacion central y melipilla, la propiedad ubicada frente al supermercado lider y cercana a otras franquicias comerciales como mac donald

Lo que brinda una gran oportunidad para el desarrollo de distintos proyectos .
***av . Principal
**frente al supermercado lider /excelente vitrina comercial
**cercania a la futura estacion del metro .
**conexion inmediata a la autopista del sol .
**zona de alto crecimiento y plusvalia ,

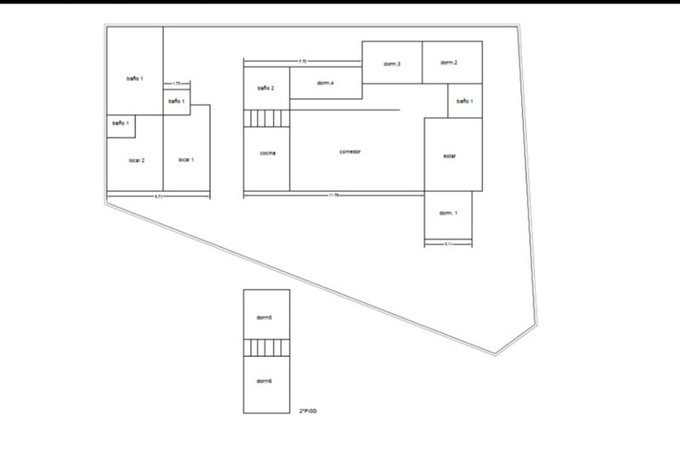
Terreno de 497 metros cuadrados, casa de albañileria de 175 metros cuadrados mas 2 locales comerciales de 60 mtrs cada uno. Total, construido 298 metros cuadrados.
La casa de dos pisos se encuentra emplazada en una zona habitacional mixta, construida en albañileria, pisos de madera y ceramica, artefactos sanitarios estándar.
Distribuida living comedor, 7 dormitorios 2 baños, cocina, patio, ante jardin.

Por encontrarse en una ubicación priviligia avenida principal, muy transitada, es una gran oportunidad de inversion y desarrollo comercial.( locales comerciales , oficinas , centros medicos , dentales , emprendimientos , franquicias )

Coctactanos para mas informacion y agendar visitas.

Mariana caceres propiedades
Whats app


Honorarios del corredor 2% mas impuestos

Mapa - Peñaflor, Av.Balmaceda frente al lider de peñaflor a metros autopista del sol y acceso nueva estacion metro tren melipilla santiago

Contactar

Email inválido
Teléfono inválido
Consejos de seguridad - No sea estafado

Corredora

Logo corredora
Nombre Easyprop
Dirección Las condes

Información de Contacto

Nombre Mariana Caceres
Teléfono T. Fijo VER TÉLEFONO