Detalles






























Se vende sólida y amplia propiedad ubicada en un sector residencial consolidado de Ñuñoa, ideal para familias grandes o para quienes buscan una vivienda con espacios independientes y posibilidad de uso mixto o renta adicional. Ubicada en un entorno tranquilo, con excelente conectividad, variedad de micros y metro chile españa, comercio, colegios y servicios de abastecimiento y medicos. A menos de dos cuadras de la Plaza Ñuñoa y a menos de 15 min caminando del Portal Ñuñoa.
+ Vivienda principal
Casa de dos pisos, bien distribuida, que cuenta con:
- 4 dormitorios (2 con balcón)
- 2 baños completos + 1 medio baño
- Living amplio y luminoso
- Comedor independiente
- Cocina funcional
- Calefacción central
- 5 Closets integrados
+ Exterior y áreas verdes
La propiedad destaca por su gran patio trasero, con:
- Piscina
- Áreas verdes consolidadas
- Parra
- Árboles frutales (damasco y limonero)
- Además, cuenta con un antejardín amplio, con abundante pasto, una higuera y que entrega privacidad
+ Segunda construcción (totalmente regularizada)
En el patio se emplaza una segunda edificación independiente, que incluye:
- Amplio salón multiuso de aproximadamente 60 m² (12 × 5 m) en primer piso, con medio baño, ideal como bodega, sala de eventos, taller, oficina, gimnasio o espacio recreativo.
- Sector de logia.
• Departamento independiente en segundo piso, con acceso por escalera exterior y balcón, que cuenta con:
- Living-comedor
- Kichenette
- 1 dormitorio
- 1 baño completo
+ Otros atributos
- Estacionamiento interior para 2 autos grandes o 3 vehículos pequeños
- Terreno de 450 m²
- 319 m² construidos totales
• Propiedad completamente regularizada y con recepción final
• Apta para crédito hipotecario
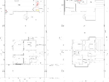
+ Se adjuntan plantas de primer y segundo piso.
Judanarq (Corredor independiente)
| Nombre | Judith Cayuqueo |
|---|---|
| Teléfono T. Fijo | VER TÉLEFONO |
| Teléfono T. Fijo | VER TÉLEFONO |