Cargando...

Ñuñoa, E.Castillo Velasco/ Monseñor Eyzaguirre

Detalles

Valor:
UF 7.018,00
Valor (CLP aprox.)*:
$ 280.259.128
Conversión: 1 UF = $ 39.934
Habitaciones:
2
Baño:
1
Estacionamientos:
1
Amoblado:
No
Superficie Total:
78 m²
Superficie Construida:
70 m²

Dirección:
Ñuñoa, E.Castillo Velasco/ Monseñor Eyzaguirre
Código aviso:
96484778
Código externo aviso:
101108328
Tipo de publicación:
Venta
Tipo de propiedad:
Casa
Fecha Publicación:
27/02/2026
* Valor calculado a partir del valor original, este valor es solo referencial.
Más Casas en Ñuñoa

Descripción

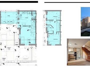
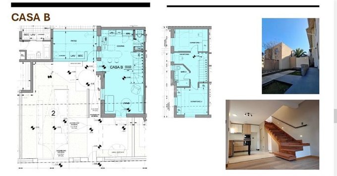
Casa Townhouse- Solo 4 unidades diseño arquitectónico moderno y elegante, combinando sofisticación en un barrio tradicional de conservación histórica. Cada unidad con programa interior diferente, terminaciones de primer nivel. Cocinas equipadas con encimera, campana, horno, microondas, lavavajillas, termo eléctrico. Ventanales termopanel, Cada una tiene su estilo propio y encanto especial, si buscas algo diferente, acá está tu opción.
te presentamos

Casa B Génova- construido 70 mts, terreo, 78 mts, VALOR UF 7.018

Programa
Living comedor juntos con salida a terraza
Gran cocina americana, comedor diario
Patio servicio amplio acceso independiente
1 baño de visita
Bodega tipo subterráneo
2do piso
Área con estación de trabajo/escritorio
2 dormitorios
1 baño completo.

Son 4 unidades nuevas , todas con programas diferentes , estan en proceso de Recepción final, fecha estimada, Marzo 2026 para escriturar.-

Para mayor información, contáctanos tienes que conocerlas en vivo!

Mapa - Ñuñoa, E.Castillo Velasco/ Monseñor Eyzaguirre

Comodidades y Lugares de Interés

Las distancias son aproximadas y consideran una linea recta entre la propiedad y el punto de interés (No consideran las cuadras).

Monseñor Eyzaguirre
Av. Irarrázaval con Monseñor Eyzaguirre
En Construcción
174 metros

Supermercado Unimarc - Manuel Montt
Av. Irarrazaval N° 1730
235 metros

Supermercado Unimarc - Ñuñoa
Av. Irarrázaval N° 1740
228 metros

Contactar

Email inválido
Teléfono inválido
Consejos de seguridad - No sea estafado

Corredora

Logo corredora
Nombre Hobbins Propiedades
Dirección Av. La Dehesa 1844 Of. 722, Torre Norte, Lo Barnechea

Información de Contacto

Nombre Daina Narbona
Teléfono T. Fijo VER TÉLEFONO
Teléfono T. Fijo VER TÉLEFONO