Cargando...

Macul, Amplio Terreno en Sector Industrial (127759)

Detalles

Valor:
UF 52.000,00
Valor (CLP aprox.)*:
$ 2.065.782.680
Conversión: 1 UF = $ 39.727
Estacionamientos:
8
Superficie Total:
3.000 m²

Dirección:
Macul, Amplio Terreno en Sector Industrial (127759)
Código aviso:
105635095
Código externo aviso:
127759
Tipo de publicación:
Venta
Tipo de propiedad:
Terreno Industrial
Fecha Publicación:
31/12/2025
* Valor calculado a partir del valor original, este valor es solo referencial.
Más Terreno Industrials en Macul

Descripción

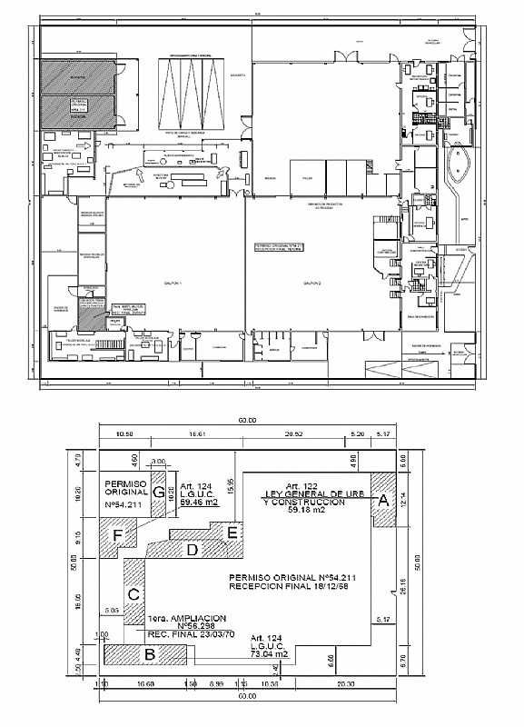
Descubra una oportunidad única en Macul, en la vibrante región de Santiago. Presentamos una propiedad industrial de gran envergadura que redefine el concepto de inversión inteligente. Con 1,845 m construidos y un extenso terreno de 3,000 m, este inmueble ofrece un vasto espacio que se adapta perfectamente a las más variadas operaciones industriales o logísticas.

La propiedad garantiza comodidad y funcionalidad con sus cuatro baños y la capacidad para albergar ocho vehículos, lo que asegura un entorno laboral eficiente y organizado. Las cuatro bodegas disponibles permiten un manejo óptimo del almacenamiento, proporcionando la flexibilidad que su negocio necesita para crecer.

Estratégicamente ubicada, forma parte de un entorno dinámico y en constante desarrollo, ideal para quienes buscan ampliar su presencia en un sector de alta demanda. Invierta en lo que verdaderamente cuenta: ubicación, espacio y posibilidades de expansión. Convierta este inmueble en el pilar de su éxito empresarial!

El terreno tiene 1.845 mts2 construidos con galpones y oficinas, así como instalaciones para el personal, cuenta con entrada para vehículos y espacio para utilizar como bodegaje.

Corriente trifásica y disponibilidad de todos los planos.
Tasación actualizada en valor de venta.

Zonificación ZIe
Altura Máxima Edificación: Rasante
Coeficiente Ocupación de Suelo: 0.6
Coeficiente Constructibilidad: 2.5

No dudes en agendar tu visita!

Honorario de corretaje 2% + IVA

Mapa - Macul, Amplio Terreno en Sector Industrial (127759)

Contactar

Email inválido
Teléfono inválido
Consejos de seguridad - No sea estafado

Información de Contacto

Nombre Alejandra Prudante
Teléfono T. Fijo VER TÉLEFONO