Cargando...

Macul, Amplio terreno en sector industrial

Detalles

Valor:
UF 52.000,00
Valor (CLP aprox.)*:
$ 2.063.260.160
Conversión: 1 UF = $ 39.678
Superficie Total:
3.000 m²

Dirección:
Macul, Amplio terreno en sector industrial
Código aviso:
100911498
Código externo aviso:
114521
Tipo de publicación:
Venta
Tipo de propiedad:
Terreno Industrial
Fecha Publicación:
18/11/2025
* Valor calculado a partir del valor original, este valor es solo referencial.
Más Terreno Industrials en Macul

Descripción

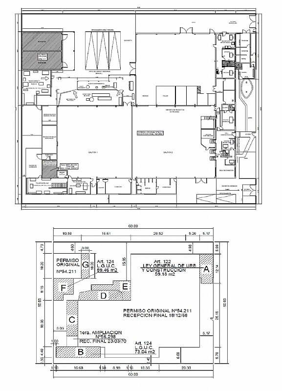
P.G. Inmobiliaria vende terreno de 3.000 mts2 en Macul, en Zona Exclusivamente Industrial.
A 400 metros de futura estación Quilin!!

El terreno tiene 1.845 mts2 construidos con galpones y oficinas, así como instalaciones para el personal, cuenta con entrada para vehículos y espacio para utilizar como bodegaje.
Corriente trifásica y disponibilidad de todos los planos.
Tasación actualizada en valor de venta.

Zonificación ZIe
Altura Máxima Edificación: Rasante
Coeficiente Ocupación de Suelo: 0.6
Coeficiente Constructibilidad: 2.5
Esta empresa de corretaje está verificada
No dudes en agendar tu visita!
Se aceptan ofertas

Honorario de corretaje 2% + IVA.

Mapa - Macul, Amplio terreno en sector industrial

Contactar

Email inválido
Teléfono inválido
Consejos de seguridad - No sea estafado

Información de Contacto

Nombre Prudant Gestion Inmobiliaria
Teléfono T. Fijo VER TÉLEFONO