Cargando...

Limache, Terreno 5000mt cabaña linda vista lliu lliu (153610)

Detalles

Valor:
UF 1.590,00
Valor (CLP aprox.)*:
$ 63.348.335
Conversión: 1 UF = $ 39.842
Superficie Total:
5.000 m²

Dirección:
Limache, Terreno 5000mt cabaña linda vista lliu lliu (153610)
Código aviso:
113147738
Código externo aviso:
153610
Tipo de publicación:
Venta
Tipo de propiedad:
Terreno
Fecha Publicación:
21/03/2026
* Valor calculado a partir del valor original, este valor es solo referencial.
Más Terrenos en Limache

Descripción

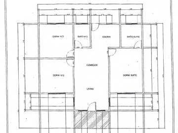
Oportunidad para invertir en un terreno de 5000 metros cuadrados, el cual posee 3 terrazas, en la de mas abajo se ubica la cabaña de 3 dormitorios y 2 baños, con medidor eléctrico y agua de estanques de reserva , fosa y sistema de reciclaje de aguas, a 5 minutos caminando hacia el embalse LLiuLLiu, comuna de Limache

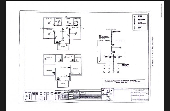
La cabaña de 63 metros cuadrados cuenta con Living Comedor y Cocina americana, dormitorio principal con baño, además otras 2 habitaciones y un baño, es del año 2019 y no se encuentra regularizada. La parcela posee rol propio y se ubica a 20mt del camino principal asfaltado. El tendido eléctrico fue soterrado desde el empalme hacia la cabaña.

Ubicado en el encantador sector de Lliu Liu , este terreno es perfecto para realizar un proyecto de vida ecológica y sustentable, inmerso en un entorno rodeado de naturaleza, caminos y senderos, ideal para practicar y realizar múltiples travesías deportivas. Se ubica a 15 minutos de Limache y Olmué, a 40 minutos de Viña del Mar y a 2 horas de Santiago.

Oportunidad!! atrévete a disfrutar de tu parcela en un entorno único y transforma este terreno en el hogar que siempre has deseado. Limache te espera con su belleza natural y su ambiente acogedor.

Imagina despertar cada día con la vista de 5000 m de terreno que te ofrecen infinidad de oportunidades, desde la creación de un jardín soñado hasta posibles proyectos de expansión. Sus 63 m construidos están diseñados eficientemente, ofreciendo un espacio acogedor y fácil de mantener.

Adquiere este entorno único y disfruta de una calidad de vida inigualable. Ya sea como tu nuevo hogar o una inversión estratégica en una localidad en creciente valorización.

Agenda tu Visita!

Mapa - Limache, Terreno 5000mt cabaña linda vista lliu lliu (153610)

Contactar

Email inválido
Teléfono inválido
Consejos de seguridad - No sea estafado

Corredora

Logo corredora
Nombre Lorena Reyes

Información de Contacto

Nombre Lorena Reyes
Teléfono T. Fijo VER TÉLEFONO