Cargando...

Las Condes, Cercano a isabel la católica con sebastián elcano

Detalles

Valor:
UF 18.990,00
Valor (CLP aprox.)*:
$ 754.310.336
Conversión: 1 UF = $ 39.721
Gastos Comunes:
$ 300.000
Habitaciones:
4
Baño:
4
Estacionamientos:
3
Amoblado:
No
Superficie Total:
176 m²
Superficie Útil:
142 m²

Dirección:
Las Condes, Cercano a isabel la católica con sebastián elcano
Código aviso:
107901615
Código externo aviso:
31355
Tipo de publicación:
Venta
Tipo de propiedad:
Departamento
Fecha Publicación:
24/01/2026
* Valor calculado a partir del valor original, este valor es solo referencial.
Más Departamentos en Las Condes

Descripción

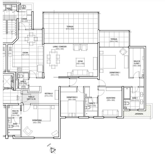
HERMOSO y amplio departamento en excelente estado (4D / 4B)

Bello departamento ubicado en excelente sector, cerca de Isabel la Católica con Sebastián Elcano. La zona cuenta con gran conectividad, locomoción urbana cercana, áreas verdes, colegios, farmacias, supermercados, restaurantes, entre otros.

La propiedad posee 142 m2 útiles, 176 m2 totales, una AMPLIA y hermosa terraza con orientación Nor-Oriente, 4 dormitorios (2 en suite), 4 baños (1 de visitas), walk in closet, living comedor juntos, amplia cocina con isla y logia.

Adicionalmente, cuenta con 3 ESTACIONAMIENTOS y 1 bodega.

Gastos Comunes: $300.000 aprox.
Contribuciones: $790.000 aprox.

*Se adjunta foto del plano del departamento al final de las fotos

Mapa - Las Condes, Cercano a isabel la católica con sebastián elcano

Contactar

Email inválido
Teléfono inválido
Consejos de seguridad - No sea estafado

Corredora

Logo corredora
Nombre Unne
Dirección Asturias 171, of. 203, Las Condes

Información de Contacto

Nombre Inmobili SpA
Teléfono T. Fijo VER TÉLEFONO