Cargando...

Las Condes, Avenida padre hurtado central

Detalles

Valor:
UF 26.000,00
Valor (CLP aprox.)*:
$ 1.035.884.720
Conversión: 1 UF = $ 39.842
Habitaciones:
5
Baño:
4
Amoblado:
No
Superficie Total:
541 m²
Superficie Construida:
248 m²

Dirección:
Las Condes, Avenida padre hurtado central
Código aviso:
73204920
Código externo aviso:
15613
Tipo de publicación:
Venta
Tipo de propiedad:
Casa
Fecha Publicación:
04/02/2025
* Valor calculado a partir del valor original, este valor es solo referencial.
Más Casas en Las Condes

Descripción

Amplia casa en barrio residencial con excelente conectividad, a pasos de Av. Las Condes, metro Los Domínicos, malls, colegios y comercio de la zona.
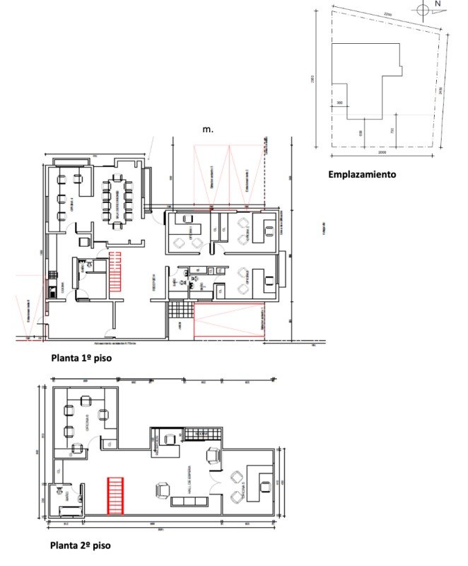
541 mt2 de terreno y construcción aislada de 2 pisos con 248 mt2
Capacidad para más de 3 vehículos, construcción sólida en el primer piso y de madera en el segundo, con recepción definitiva completa.

Piso 1.
Hall de acceso, living con chimenea y comedor separados con piso de parquet.
Cocina tradicional con comedor de diario, logia amplia y patio de servicio.
Sala de estar independiente con ampliación regularizada.
Dormitorio principal con baño en suite.
2 dormitorios.
Baño completo.
Pieza de servicio con baño.

Piso 2.
Gran sala de estar con balcón, 2 dormitorios grandes, 1 baño completo.

Exterior.
Amplio antejardín, piscina, terraza formada, patio de servicio.

https://youtu.be/I4gPSEtfj8I

Mapa - Las Condes, Avenida padre hurtado central

Contactar

Email inválido
Teléfono inválido
Consejos de seguridad - No sea estafado

Corredora

Logo corredora
Nombre Unne
Dirección Asturias 171, of. 203, Las Condes

Información de Contacto

Nombre María Pilar Fernández
Teléfono T. Fijo VER TÉLEFONO