Detalles

















Dirección: Conjunto Florida 11, Vicuña Mackenna 11847, La Florida
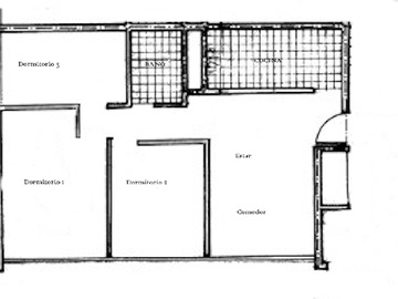
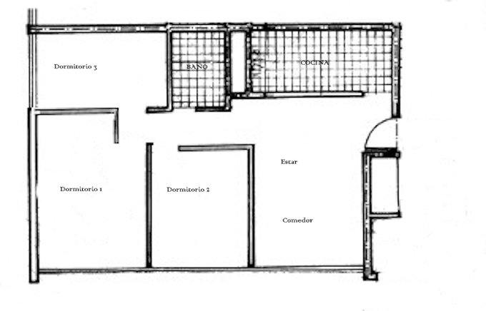
Superficie útil: 58 m² Año de construcción: 1979
Contribuciones: Exento
Comisión de compra: 2% sin adicionales
Características principales:
3 dormitorios y 1 baño
Primer piso: ideal para personas mayores o con movilidad reducida
Estacionamiento común
Sistema eléctrico actualizado
Citófono
Gastos comunes desde $30.000
Entorno y conectividad:
A pasos del Metro Los Quillayes
Excelente conectividad por Vicuña Mackenna
Cercano a comercio, servicios y áreas verdes
Espacios comunes:
Amplios jardines interiores
Ambientes tranquilos y familiares
Visite – Compare – Infórmese – Decídase
Somos Dimafe® Propiedades
Los Quillayes
Av. Vicuña Mackenna con María Elena
144 metros
Supermercado Santa Isabel - Vicuña Mackenna / La Florida
Av. Vicuña Mackenna Nº 11145
163 metros
Cajero Automático Banco Falabella - Mall Plaza Vespucio
Av. Vicuña Mackenna N° 7110
206 metros
| Nombre | Dimafe Propiedades |
|---|---|
| VER CORREO | |
| Teléfonos | VER TÉFONOS |
| Nombre | Dimafe Propiedades |
|---|---|
| @dimafe_cl | |
| Teléfono T. Fijo | VER TÉLEFONO |