Cargando...

Huechuraba, Ciudad empresarial

Detalles

Valor:
UF 6.800,00
Valor (CLP aprox.)*:
$ 270.923.696
Conversión: 1 UF = $ 39.842
Habitaciones:
2
Baño:
3
Estacionamientos:
3
Amoblado:
No
Superficie Total:
119,27 m²
Superficie Útil:
115,67 m²

Dirección:
Huechuraba, Ciudad empresarial
Código aviso:
96164404
Código externo aviso:
27530
Tipo de publicación:
Venta
Tipo de propiedad:
Oficina
Fecha Publicación:
06/10/2025
* Valor calculado a partir del valor original, este valor es solo referencial.
Más Oficinas en Huechuraba

Descripción

OFICINA TIPO LOFT EN PATIO MAYOR / AV. DEL VALLE, CIUDAD EMPRESARIAL
Descripción General:
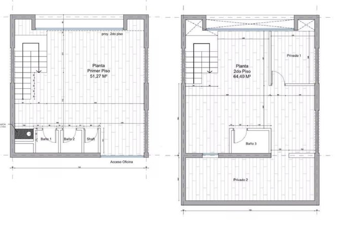
Moderna oficina tipo loft en excelente estado, ubicada en el Edificio Patio Mayor, Av. Del Valle 945, Ciudad Empresarial, Huechuraba. Cuenta con una agradable vista despejada, espacios amplios y funcionales, y una distribución en dos niveles (dúplex) que otorga gran luminosidad y versatilidad.
Superficies:
* 1 piso: 51,27 m útiles + balcón de 3,60 m (5,0 m largo x 0,70 m ancho)
* 2 piso: 47,47 m útiles + ampliación sin regularizar de 16,93 m
* Superficie total: 119,27 m
* Superficie útil regularizada: 115,67 m
Detalle:
Primer Piso:
* Recepción amplia y luminosa
* Planta libre para 4 estaciones de trabajo
* Kitchenette tipo cafetería con lavaplatos y mueble copero
* 2 Baños completos
Segundo Piso:
* 1 Privado principal
* 1 Sala de reuniones amplia con equipo de aire acondicionado
* Planta libre para estaciones de trabajo adicionales
* 1 Baño grande

Equipamiento Complementario:
* 3 estacionamientos
* 1 bodega (aprox. 2,8 m)
* Disponibilidad inmediata
* Gastos comunes aproximados: 300.000 $/mes
* Costo Climatización centralizada: según uso
Características del Edificio:
* Edificio corporativo de oficinas, año 2001
* Excelente imagen institucional y exposición hacia Av. Del Valle
* Hall de acceso en doble altura
* Control de acceso con tarjeta magnética
* Conserjería y CCTV 24/7 (alta seguridad)
* 4 ascensores de alta velocidad
* Sistema de aire acondicionado centralizado conectado al edificio
* Cafetería en el primer piso
* Cercano a servicios y equipamiento: restaurantes, cafeterías, bancos, gimnasios, áreas verdes y servicios empresariales.

Ubicación:
Sector consolidado de Ciudad Empresarial, con excelente conectividad por Av. Américo Vespucio, Costanera Norte y Autopista Nororiente. Cercano a transporte público y áreas de servicios.
Precios:
Arriendo:
Oficina: 0,30 UF/M2; total 35 UF/mes
3 Estacionamientos: 3 UF; total 9 UF/mes
1 Bodega: 2 UF/mes
Total Arriendo: 46 UF/mes (negociable según extension contrato)
____________________________________________
Venta:
Oficina: 54 UF/M2; total: 6210 UF
3 Estacionamientos: 180 UF; total: 540 UF
1 Bodega: 60 UF
Totalventa:6.800UF

Mapa - Huechuraba, Ciudad empresarial

Comodidades y Lugares de Interés

Las distancias son aproximadas y consideran una linea recta entre la propiedad y el punto de interés (No consideran las cuadras).

Supermercado Líder - Ciudad Empresarial
Av. del Valle Nº 725
521 metros

Contactar

Email inválido
Teléfono inválido
Consejos de seguridad - No sea estafado

Corredora

Logo corredora
Nombre Unne
Dirección Asturias 171, of. 203, Las Condes

Información de Contacto

Nombre Maria José Valdés Propiedades
Teléfono T. Fijo VER TÉLEFONO