Cargando...

Concón, Concón

Detalles

Valor:
UF 2.890,00
Valor (CLP aprox.)*:
$ 114.802.707
Conversión: 1 UF = $ 39.724
Gastos Comunes:
$ 100.000
Habitaciones:
1
Baño:
1
Estacionamientos:
1
Amoblado:
Superficie Total:
35 m²
Superficie Útil:
28 m²

Dirección:
Concón, Concón
Código aviso:
104072246
Código externo aviso:
102135214
Tipo de publicación:
Venta
Tipo de propiedad:
Departamento
Fecha Publicación:
13/12/2025
* Valor calculado a partir del valor original, este valor es solo referencial.
Más Departamentos en Concón

Descripción

Lindo departamento en sector consolidado y con muy buena rentabilidad en concón, buena conectividad con acceso directo a reñaca y al centro de concón. Cercano a centros comerciales, bancos, supermercados jumbo y lider, centros medicos, restaurantes, parques centrales, miradores, colegios, jardines infantiles, locomoción, entorno con buen estandar de departamentos.

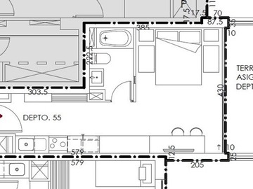
El departamento
Departamento estilo home studio.
Superficie útil de 28 m2.
Terraza de 7 m2.
Total de 35 m2.
Cocina totalmente equipada.
Lavavajilla.
1 baño.
Estar-dormitorio.
1 estacionamiento bajo loza.
1 bodega bajo loza.
Valor de contribuciones $20.000

El condominio
Accesos controlados.
Piscina.
Gimnasio.
Quinchos.
Sala multiuso.
Edificio con tres ascensores.
Valor de gastos comunes $ 70.000
Lavadandería.

Mapa - Concón, Concón

Contactar

Email inválido
Teléfono inválido
Consejos de seguridad - No sea estafado

Corredora

Logo corredora
Nombre Nexxos 3
Dirección AVENIDA CACHAGUA 174

Información de Contacto

Nombre Jaime Rojas
Teléfono T. Fijo VER TÉLEFONO