Cargando...

Castro, Acogedora casa en venta en lago pastahue, castro.

Detalles

Valor:
$ 90.000.000
Valor (UF aprox.)*:
UF 2.275,79
Conversión: 1 UF = $ 39.547
Habitaciones:
2
Baño:
1
Amoblado:
No
Superficie Total:
796 m²
Superficie Construida:
100 m²

Dirección:
Castro, Acogedora casa en venta en lago pastahue, castro.
Código aviso:
96569136
Código externo aviso:
101008700
Tipo de publicación:
Venta
Tipo de propiedad:
Casa
Fecha Publicación:
10/10/2025
* Valor calculado a partir del valor original, este valor es solo referencial.
Más Casas en Castro

Descripción

Acogedora Casa en Lago Pastahue, Castro.

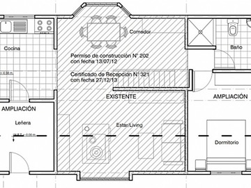
Hermosa y bien ubicada casa en Laguna Pastahue Castro, emplazada en un barrio tranquilo, sin bullicio y muy seguro. Al interior cuenta con un amplio living comedor, dos dormitorios y un baño completo, cocina ampliada y completamente amoblada con salida a logia techada y amplio jardín que cuenta con diversos árboles nativos y frutales.

Características propiedad:

- 2 pisos.
- 796 mt2 Terreno
- 100 mt2 Construidos
- 2 habitaciones
- 1 baño
- 2 estacionamientos
- Bodega y Logia techada.

Gastos:

- NO paga Contribuciones

Mapa - Castro, Acogedora casa en venta en lago pastahue, castro.

Contactar

Email inválido
Teléfono inválido
Consejos de seguridad - No sea estafado

Corredora

Logo corredora
Nombre Movahome
Email VER CORREO
Dirección Avda. Providencia #2019, oficina B-22
Teléfonos VER TÉFONOS

Información de Contacto

Nombre Living Propiedades
Teléfono T. Fijo VER TÉLEFONO