Cargando...

Santiago, San Ignacio 1498

Detalles

Valor:
$ 250.000
Valor (UF aprox.)*:
UF 6,30
Conversión: 1 UF = $ 39.693
Habitaciones:
1
Baño:
1
Amoblado:
No
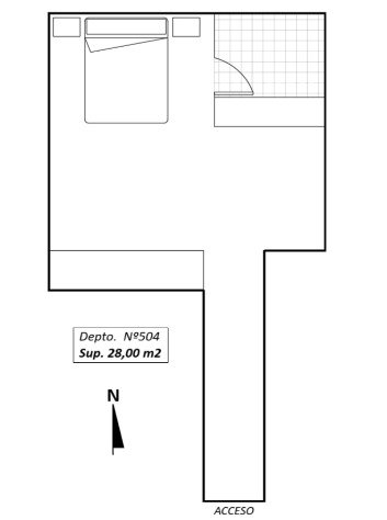
Superficie Total:
28 m²
Superficie Útil:
28 m²

Dirección:
Santiago, San Ignacio 1498
Código aviso:
104461011
Código externo aviso:
184779
Tipo de publicación:
Arriendo Mensual
Tipo de propiedad:
Departamento
Fecha Publicación:
17/12/2025
* Valor calculado a partir del valor original, este valor es solo referencial.
Más Departamentos en Santiago

Descripción

Cómodo y luminoso estudio de 28 m, ideal para inversión o primera vivienda, ubicado en un sector estratégico de Santiago Centro, a pasos del Metro Rondizzoni y frente al Parque OHiggins.

El estudio cuenta con un espacio integrado tipo estudio, dormitorio, baño completo y una distribución eficiente que aprovecha cada metro cuadrado. Su orientación poniente permite disfrutar de una vista despejada al parque y buena iluminación natural durante la tarde.

CARACTERÍSTICAS DEL DEPARTAMENTO

Superficie total: 28 m

Dormitorios: 1 ambiente

Baños: 1

Piso: 5

Orientación: Poniente

Tipo de suelo: Piso flotante

Calefacción: No posee

Gastos comunes: $60.000 aprox.

Bodega incluida

Sin estacionamiento

Estacionamientos de visitas: Sí

CARACTERÍSTICAS DEL EDIFICIO

Edificio de 13 pisos

Lavandería

Accesos controlados

Excelente conectividad y entorno urbano consolidado

UBICACIÓN

Ubicado en San Ignacio, con acceso directo a:

Metro Rondizzoni

Parque OHiggins

Servicios, comercio y locomoción

Mapa - Santiago, San Ignacio 1498

Comodidades y Lugares de Interés

Las distancias son aproximadas y consideran una linea recta entre la propiedad y el punto de interés (No consideran las cuadras).

Rondizzoni
Autopista Central con Av. Rondizzoni
214 metros

Parque O'Higgins
Autopista Central con Av. Manuel Antonio Matta
322 metros

Contactar

Email inválido
Teléfono inválido
Consejos de seguridad - No sea estafado

Corredora

Logo corredora
Nombre Home Solutions
Email VER CORREO
Dirección Av. Apoquindo 6410, Of. 212, Las Condes, Santiago
Teléfonos VER TÉFONOS
Somos una empresa especializada en corretaje de propiedades, nuestras fortalezas: venta, arriendo y administración de propiedades habitacionales en Santiago de Chile, Región Metropolitana. Nos dedicamos de corazón a aquello que nos apasiona y nos motiva día a día a brindar un servicio de asesoría integral a los clientes que confían en nuestro trabajo. Contáctanos, te atenderemos con gusto y resolveremos tus dudas. Profesionalismo, eficiencia y cordialidad, es nuestro lema. Te esperamos.

Información de Contacto

Nombre Ingrid Tolle
Facebook https://www.facebook.com/home.solutions.chile/
Teléfono T. Fijo VER TÉLEFONO
Otro VER MÁS