Cargando...

Quilicura, hasta 2492 y hasta de oficinas por habilitar en 2 pisos. hasta

Detalles

Valor:
UF 143,00
Valor (CLP aprox.)*:
$ 5.731.481
Conversión: 1 UF = $ 40.080
Superficie Total:
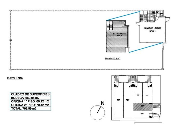
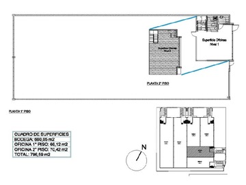
1.104 m²
Superficie Útil:
796,6 m²

Dirección:
Quilicura, hasta 2492 y hasta de oficinas por habilitar en 2 pisos. hasta
Código aviso:
116442278
Código externo aviso:
217110975
Tipo de publicación:
Arriendo Mensual
Tipo de propiedad:
Bodega
Fecha Publicación:
22/04/2026
* Valor calculado a partir del valor original, este valor es solo referencial.
Más Bodegas en Quilicura

Descripción

Usos permitidos:
Industrial Molesto.
Muros de separación con excelente capacidad térmica y acústica.
Altura al hombro8.55 metros
Altura a cumbrera 9.55 metros
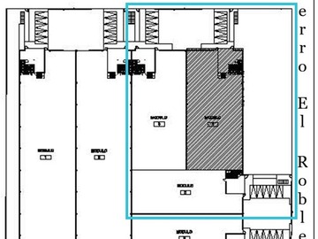
3 bodegas NUEVAS independientes que se podrían unir.
Bodega 3 y 4: idénticas, 916 m2 de bodega y 188,9 m2 de oficinas por habilitar (1.104 m2 totales). (Baños terminados). UF 199 cada una
Bodega 5: 660 m2 de bodega y 136,5 m2 de oficinas en 2 pisos por habilitar
Alimentación de agua y electricidad independiente
Resistencia al fuego rf-120
Energía trifásica
Sector de alto flujo vehicular, acceso principal a Quilicura alta presencia de mercado industrial mixto consolidado excelente ubicación, estructurada por avenidas y con Acceso a Panamericana Norte.
Sector de alta conectividad, tanto industrial como urbano.
Gran conectividad ruta 5 norte, radial nor oriente y Vespucio norte.
SIN GASTOS COMUNES
Honorarios 50% mes de arriendo más retención boleta honorarios
#Adriasolapropiedades

Mapa - Quilicura, hasta 2492 y hasta de oficinas por habilitar en 2 pisos. hasta

Contactar

Email inválido
Teléfono inválido
Consejos de seguridad - No sea estafado

Corredora

Logo corredora
Nombre Easyprop
Dirección Las condes

Información de Contacto

Nombre Adriasola Propiedades
Teléfono T. Fijo VER TÉLEFONO