Cargando...

Providencia, Metro Pedro de Valdivia // Nueva Providencia // Marchant Pereira

Detalles

Valor:
UF 0,30
Valor (CLP aprox.)*:
$ 11.918
Conversión: 1 UF = $ 39.728
Baño:
45
Estacionamientos:
62
Amoblado:
No
Superficie Total:
2.484 m²
Superficie Útil:
2.484 m²

Dirección:
Providencia, Metro Pedro de Valdivia // Nueva Providencia // Marchant Pereira
Código aviso:
110124759
Código externo aviso:
203108016
Tipo de publicación:
Arriendo Mensual
Tipo de propiedad:
Oficina
Fecha Publicación:
17/02/2026
* Valor calculado a partir del valor original, este valor es solo referencial.
Más Oficinas en Providencia

Descripción

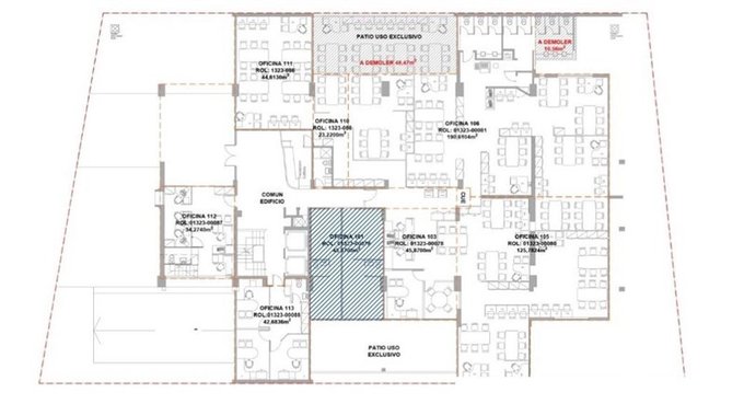
Oficinas & Workspaces Solutions Fernández Luco (Ref 108.016)
Edificio clase B a valor UF conveniente para habilitación de plantas con desglose de roles que permiten subdividirse en múltiples oficinas desde los 15 M o bien dejarlo en plantas libres como se perciben en las imágenes.
Edificio de oficinas de diversos usos permitidos por céntrica ubicación en sector consolidado de Providencia, cercano a la Municipalidad, universidades, sedes de educación, notarías y servicios médicos de amplias especialidades.
Cuenta con dos ascensores y habilitación completa en hormigón armado de sus 9 pisos con un total de 2.484 M útiles, luminarias, equipamiento de climatización sectorizados, redes de datos, 2 niveles de subterráneos para 62 estacionamientos a valor preferencial como opción de compra o arriendo.
Este edificio por su conveniente ubicación puede definirse para diversos rubro como centro médico, entidades educativas, comunitarias o sedes administrativas para seguridad, cultura, organizaciones y servicios públicos generales y profesionales, además de entidades gubernamentales o municipales.
Mayor Información y coordinar visita al 9 96316968

Mapa - Providencia, Metro Pedro de Valdivia // Nueva Providencia // Marchant Pereira

Comodidades y Lugares de Interés

Las distancias son aproximadas y consideran una linea recta entre la propiedad y el punto de interés (No consideran las cuadras).

Manuel Montt
Av. Nueva Providencia con Av. Manuel Montt
684 metros

Pedro de Valdivia
Av. Nueva Providencia con Av. Pedro de Valdivia
160 metros

Mall Vivo Panorámico
Nueva Providencia 2155
331 metros

Supermercado Santa Isabel - Providencia / Andrés de Fuenzalida
Av. Providencia Nº 2158
331 metros

Ekono - Eliodoro Yáñez
Eliodoro Yáñez N° 1405
432 metros

Supermercado Ekono - Av. Providencia / Antonio Bellet
Av. Providencia N° 1634
351 metros

Ekono - Av. Eliodoro Yáñez /
Av. Eliodoro Yáñez N° 1371
437 metros

Johnson - Mall Panorámico
Av. Nueva Providencia N° 2155
328 metros

Contactar

Email inválido
Teléfono inválido
Consejos de seguridad - No sea estafado

Corredora

Logo corredora
Nombre Easyprop
Dirección Las condes

Información de Contacto

Nombre Fernandez Luco Gestion Inmobiliaria
Teléfono T. Fijo VER TÉLEFONO