Cargando...

Ñuñoa, Avenida Vicuña Mackenna 1449

Contactar con WhatsApp

Detalles

Valor:
UF 43,81
Valor (CLP aprox.)*:
$ 1.741.491
Conversión: 1 UF = $ 39.751
Baño:
1
Amoblado:
No
Superficie Total:
48,68 m²
Superficie Construida:
48,68 m²

Dirección:
Ñuñoa, Avenida Vicuña Mackenna 1449
Código aviso:
104152079
Código externo aviso:
464465
Tipo de publicación:
Arriendo Mensual
Tipo de propiedad:
Local Comercial
Fecha Publicación:
13/12/2025
* Valor calculado a partir del valor original, este valor es solo referencial.

Tour Virtual

Más Local Comercials en Ñuñoa
Contactar con WhatsApp

Descripción

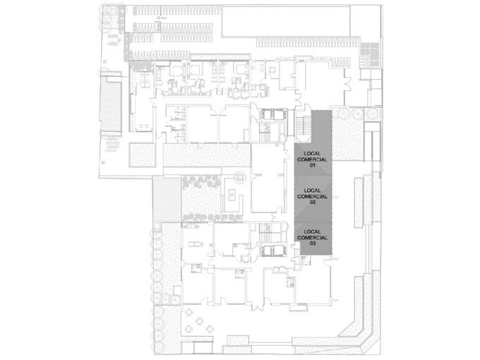
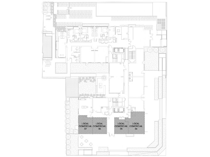
En Vicuña Mackenna, entre metro ñuble y metro irarrázaval, se encuentra un edificio multifamily con 190 departamentos y 7 locales comerciales en bruto.

4 locales DISPONIBLES:

Local 2: 48.68 m2
Local 5: 28,54 m2
Local 6: 32,7 m2
Local 7: 35,36 m2

Promoción los primeros 3 años!!

Primer año:
Local 2: 43.81 UF + IVA
Local 5: 19.98 UF + IVA
Local 6: 22.89 UF + IVA
Local 7: 24.75 UF + IVA

Segundo año:
Local 2: 48.68 UF + IVA
Local 5: 22.83 UF + IVA
Local 6: 26.16 UF + IVA
Local 7: 28.29 UF + IVA

Tercer año:
Local 2: 53.55 UF + IVA
Local 5: 25.69 UF + IVA
Local 6: 29.43 UF + IVA
Local 7: 31.82 UF + IVA

Siguientes años:
Local 2: 48,68 UF + IVA
Local 5: 28,54 UF + IVA
Local 6: 32,7 UF + IVA
Local 7: 35,36 UF + IVA

Características:
- Gastos Comunes: 0,1 UF/m2
- Damos entre uno o dos meses de gracia para habilitar el local.

Terminaciones:
- Piso: Piso de Radier afinado para recibir pavimento
- Paredes: En obra gruesa.
- Cielo: Losa de hormigón e instalaciones a la vista.
- Sistemas de seguridad de detección de humo e instalaciones de red húmeda contra incendios.
- Sistema monofásico 40A, (es posible cambiar a trifásico)
- Cortinas eléctricas.
- Todos los locales tienen baño habilitado.

Requisitos de Arriendo:
- Titular con sueldo líquido 3 veces el valor del arriendo y debe contar con un Aval.
- Duración de contrato mínimo para validar promoción es de 2 años.
- Contratación: 2 meses de Garantía + Comisión corretaje: 1 renta promedio + IVA o 2% del total de años de transacción.

Coordine su visita al +56 9 3933 7494 o al correo: locales@gpartners.cl

- KP464465 - KPT010600 -
- Publicado usando KiteProp CRM Inmobiliario

Mapa - Ñuñoa, Avenida Vicuña Mackenna 1449

Comodidades y Lugares de Interés

Las distancias son aproximadas y consideran una linea recta entre la propiedad y el punto de interés (No consideran las cuadras).

Ñuble
Av. Vicuña Mackenna con Av. Carlos Dittborn
373 metros

Contactar

Email inválido
Teléfono inválido
Consejos de seguridad - No sea estafado

Información de Contacto

Nombre Nicolas González Vergara
Teléfono T. Fijo VER TÉLEFONO