Detalles


















Excelente Bodega-Galpón y Oficina disponibles de distintos metrajes y valores. (desde UF 0.175 mtr. con Gasto Común)
P. de Valdivia con Quilín, en Condominio de Bodegas en Macul. Sector central de la comuna y de fácil acceso. Características Generales.
El condominio cuenta con comedor y baños públicos,
Red eléctrica trifásica y remarcado de luz propio.
Portón de acceso metálico de corredera.
Red Húmeda interna - Sistema de Detección Incendio
Acceso directo para camiones y contenedores.
Condominio (15.700 metros 2) con administración en el mismo recinto. Portería y guardias 24/7 al ingreso vehicular y peatonal.
Cámaras de seguridad y Perimetrales cámaras de seguridad de alta tecnología. Portones automáticos de acceso al condominio por dos calles. .....................................................................................................................................................................
Bodegas Disponibles:
-Bodegas En Subterraneo con Rampla de Bajada: 50 –80 y 260 mts.,
-Bodega de 368 mts con altura desde piso 5,20 mts aprox., Un Piso
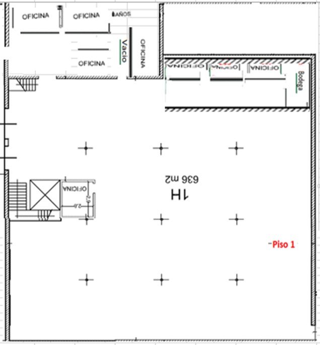
-Bodega de 1.040 mts, de dos pisos. Piso Uno, 80 mts oficinas, dos baños Montacarga y resto 200 mts. libre.
En Piso dos, 760 mts. Hay dos cajas de escalas.
-Bodega de 875 mts con altura desde piso 5,20 mts aprox., Un Piso Galpon y Oficina piso 2 75 mts.
Valores de Arriendos por dos años desde: U.F. 0.165: UF/m2.
Gastos comunes: desde U.F 0.015 UF/m2. (No Afecto a IVA).
, Contacto al correo jose.bacal.atikva@gmail.com 56977599372
| Nombre | Jose Bacal |
|---|---|
| Teléfono T. Fijo | VER TÉLEFONO |