Cargando...

Macul, Las Dalias // Pedro de Valdivia // Arturo Obispo Espinoza

Detalles

Valor:
UF 236,30
Valor (CLP aprox.)*:
$ 9.374.118
Conversión: 1 UF = $ 39.670
Estacionamientos:
5
Superficie Total:
2.220 m²
Superficie Útil:
2.220 m²

Dirección:
Macul, Las Dalias // Pedro de Valdivia // Arturo Obispo Espinoza
Código aviso:
102459969
Código externo aviso:
217105049
Tipo de publicación:
Arriendo Mensual
Tipo de propiedad:
Bodega
Fecha Publicación:
30/11/2025
* Valor calculado a partir del valor original, este valor es solo referencial.
Más Bodegas en Macul

Descripción

Logística Workspaces Solutions Fernández Luco (Ref 105.049)
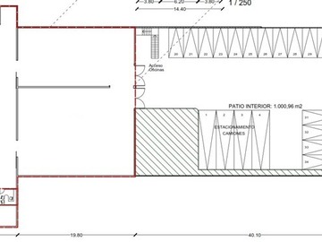
Bodega con oficina de un total de 2.220 M para uso exclusivo en amplia Infraestructura para logística en recinto resguardado de complejo industrial con excelente ubicación en el sector de Macul, de doble control de ingreso por las calles Las Dalias y Obispo Arturo Espinoza, en cercanía a las Avenidas Pedro de Valdivia y Rodrigo de Araya.
Instalaciones con corriente trifásica e ingreso para maniobra de camiones en su interior.
El metraje total de 2.220 M está distribuido en espacio de Bodega de 1.219 M con sectores de oficina y área de descanso de 173 M, además de amplio sector de estacionamientos para maniobras y descarga logística de 1.000 M dentro del mismo recinto.
Cuenta con baños propios y duchas para equipos de trabajo, área para comedor y sala de reuniones.
Gastos comunes a prorrata, Ref 0,035 UF/M
*Para consultas y coordinar visitas a través del 9 96316968

Mapa - Macul, Las Dalias // Pedro de Valdivia // Arturo Obispo Espinoza

Comodidades y Lugares de Interés

Las distancias son aproximadas y consideran una linea recta entre la propiedad y el punto de interés (No consideran las cuadras).

Supermercado Líder - Macul
Av. Macul Nº 2127
532 metros

Supermercado Ekono - Av. Pedro de Valdivia / Zañartu
Av. Pedro de Valdivia N° 5359
402 metros

Contactar

Email inválido
Teléfono inválido
Consejos de seguridad - No sea estafado

Corredora

Logo corredora
Nombre Easyprop
Dirección Las condes

Información de Contacto

Nombre Fernandez Luco Gestion Inmobiliaria
Teléfono T. Fijo VER TÉLEFONO