Cargando...

Las Condes, Hotel marriot

Detalles

Valor:
UF 73,81
Valor (CLP aprox.)*:
$ 2.958.326
Conversión: 1 UF = $ 40.080
Gastos Comunes:
$ 436.282
Habitaciones:
5
Baño:
4
Estacionamientos:
2
Amoblado:
No
Superficie Total:
142 m²
Superficie Útil:
141,93 m²

Dirección:
Las Condes, Hotel marriot
Código aviso:
115980625
Código externo aviso:
34658
Tipo de publicación:
Arriendo Mensual
Tipo de propiedad:
Oficina
Fecha Publicación:
18/04/2026
* Valor calculado a partir del valor original, este valor es solo referencial.
Más Oficinas en Las Condes

Descripción

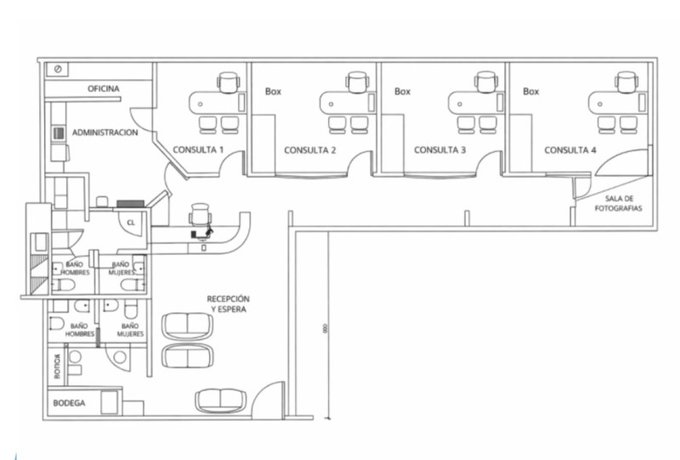
Estupendo espacio ubicado en el consolidado Edificio Marriot en un cuarto piso, el cual puede ser utilizado como consulta médica o dental, donde se tiene la libertad de modificar según la necesidad que tengan.

Cuenta con:
- Recepción y sala de espera.
- Cinco espacios para consulta.
- Cuatro baños.
- Kitchenette.
- Varias bodegas y espacios de almacenaje.
- Dos estacionamientos.
- Una bodega.

Valor Gastos Comunes 0,077 UF por m2.

Para mayor información y visitas, comunícate con Trinidad al

Mapa - Las Condes, Hotel marriot

Comodidades y Lugares de Interés

Las distancias son aproximadas y consideran una linea recta entre la propiedad y el punto de interés (No consideran las cuadras).

Mall Parque Arauco
Av. Pdte. Kennedy 5413
444 metros

Supermercado Tottus - Kennedy
Av. Presidente Kennedy N° 5601
24 metros

Cine Hoyts - Parque Arauco
Av. Presidente Kennedy N° 5413
672 metros

Homy - Mall Parque Arauco
Av. Presidente Kennedy Nº 5601
109 metros

Ripley - Mall Parque Arauco
Av. Presidente Kennedy Nº 5413
672 metros

Contactar

Email inválido
Teléfono inválido
Consejos de seguridad - No sea estafado

Corredora

Logo corredora
Nombre Unne
Dirección Asturias 171, of. 203, Las Condes

Información de Contacto

Nombre Fortaleza Propiedades y Paisajismo
Teléfono T. Fijo VER TÉLEFONO