Cargando...

Las Condes, Hotel marriot

Detalles

Valor:
UF 139,55
Valor (CLP aprox.)*:
$ 5.593.204
Conversión: 1 UF = $ 40.080
Gastos Comunes:
$ 825.000
Habitaciones:
8
Baño:
3
Amoblado:
No
Superficie Total:
268,37 m²
Superficie Útil:
268,37 m²

Dirección:
Las Condes, Hotel marriot
Código aviso:
115980606
Código externo aviso:
34717
Tipo de publicación:
Arriendo Mensual
Tipo de propiedad:
Oficina
Fecha Publicación:
18/04/2026
* Valor calculado a partir del valor original, este valor es solo referencial.
Más Oficinas en Las Condes

Descripción

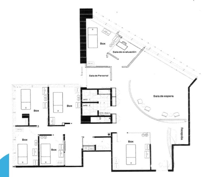
Estupendo espacio ubicado en el consolidado Edificio Marriot en un octavo piso y con linda vista; ideal para ser utilizado como consulta médica o dental, donde se tiene la libertad de modificar según la necesidad que tengan.

Cuenta con:
- Recepción y sala de espera.
- Ocho espacios para consulta.
- Tres baños.
- Kitchenette.
- Varias bodegas y espacios de almacenaje.
- Cinco estacionamientos.

Valor Gastos Comunes 0,077 UF por m2.

Para mayor información y visitas, comunícate con Trinidad al

Mapa - Las Condes, Hotel marriot

Comodidades y Lugares de Interés

Las distancias son aproximadas y consideran una linea recta entre la propiedad y el punto de interés (No consideran las cuadras).

Mall Parque Arauco
Av. Pdte. Kennedy 5413
444 metros

Supermercado Tottus - Kennedy
Av. Presidente Kennedy N° 5601
24 metros

Cine Hoyts - Parque Arauco
Av. Presidente Kennedy N° 5413
672 metros

Homy - Mall Parque Arauco
Av. Presidente Kennedy Nº 5601
109 metros

Ripley - Mall Parque Arauco
Av. Presidente Kennedy Nº 5413
672 metros

Contactar

Email inválido
Teléfono inválido
Consejos de seguridad - No sea estafado

Corredora

Logo corredora
Nombre Unne
Dirección Asturias 171, of. 203, Las Condes

Información de Contacto

Nombre Fortaleza Propiedades y Paisajismo
Teléfono T. Fijo VER TÉLEFONO