Cargando...

La Florida, Estacion metro bellavista la florida

Detalles

Valor:
UF 39,00
Valor (CLP aprox.)*:
$ 1.553.163
Conversión: 1 UF = $ 39.825
Baño:
1
Amoblado:
No
Superficie Total:
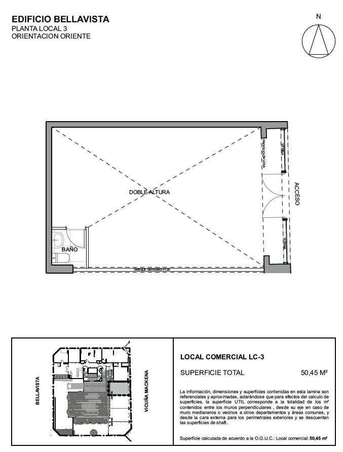
50,2 m²
Superficie Construida:
50,2 m²

Dirección:
La Florida, Estacion metro bellavista la florida
Código aviso:
99605366
Código externo aviso:
49915
Tipo de publicación:
Arriendo Mensual
Tipo de propiedad:
Local Comercial
Fecha Publicación:
06/11/2025
* Valor calculado a partir del valor original, este valor es solo referencial.
Más Local Comercials en La Florida

Descripción

LOCALES NUEVOS | DISPONIBILIDAD INMEDIATA | A PASOS DEL METRO

Arriendo: UF 39 + IVA

Características principales:
- Locales disponibles: Locales N3 y N4
- Superficies: Local N3: 50m | Local N4: 50m
- Doble altura (posibilidad de construir altillo)
- Ciclovía frente frente a entrada
- Factibilidad para elaboración de alimentos (extracción de humos)
- Posibilidad unir con el Local N3 y N4, totalizando 100 m
- Excelente exposición comercial, con flujo peatonal y vehicular (Vicuña Mackenna Oriente)

Entorno y ubicación:
Locales emplazados en un sector comercial consolidado, a pasos del Metro y con alta densidad residencial. Frente a Mall Plaza Vespucio y cercano al Colegio Bellavista (más de 2.000 personas entre estudiantes, docentes y funcionarios), CESFAM, notaría, Integramédica, Duoc UC y la nueva Plaza Cívica de La Florida. Excelente accesibilidad y conectividad, a pocos minutos de la estación Bellavista de La Florida y con paraderos de Red/Transantiago en las inmediaciones.

Cada Local Incluye:
Doble altura y orientación nor-oriente, garantiza luz natural durante gran parte del día
1 baño por local
Piso porcelanato instalado
Luminarias
Cortinas de seguridad
Mamparas de vidrio
Empalme eléctrico de 40 amperes

*** Sin comisión de corretaje de arriendo, por tratar directamente con el propietario ***

Direccion: Vicuña Mackenna Oriente 7117, LaFlorida.

Mapa - La Florida, Estacion metro bellavista la florida

Comodidades y Lugares de Interés

Las distancias son aproximadas y consideran una linea recta entre la propiedad y el punto de interés (No consideran las cuadras).

Vicuña Mackenna
Av. Américo Vespucio con Av. Julio Vildósola
537 metros

Mall Plaza Vespucio
Avenida Vicuña Mackenna 7110
142 metros

Bellavista de la Florida
Av. Vicuña Mackenna con El Cabildo
147 metros

Supermercado Líder - Mall Plaza Vespucio
Av. Vicuña Mackenna Nº 7110
403 metros

Hiper Vicuna Mackenna
Av. Vicuña Mackenna Poniente N° 7196
87 metros

Homy - Mall Plaza Vespucio
Av. Vicuña Mackenna Oriente N° 7110
242 metros

Paris - Mall Plaza Vespucio
Av. Vicuña Mackenna Oriente N° 7110
276 metros

Cinemark - Mall Plaza Vespucio
Av. Vicuña Mackenna N° 7110
403 metros

Contactar

Email inválido
Teléfono inválido
Consejos de seguridad - No sea estafado

Corredora

Información de Contacto

Nombre FYTZ
Teléfono T. Fijo VER TÉLEFONO